Charles Smith Associates was founded in 1967 by Charles Smith on the principle that accurate, high quality products and service are essential for long term survival in the marketplace. The company specializes in residential projects including custom and spec home designing, stock plans, additions and remodels.

 

Show list

Plan Name:   CS-2250

Front Elevation

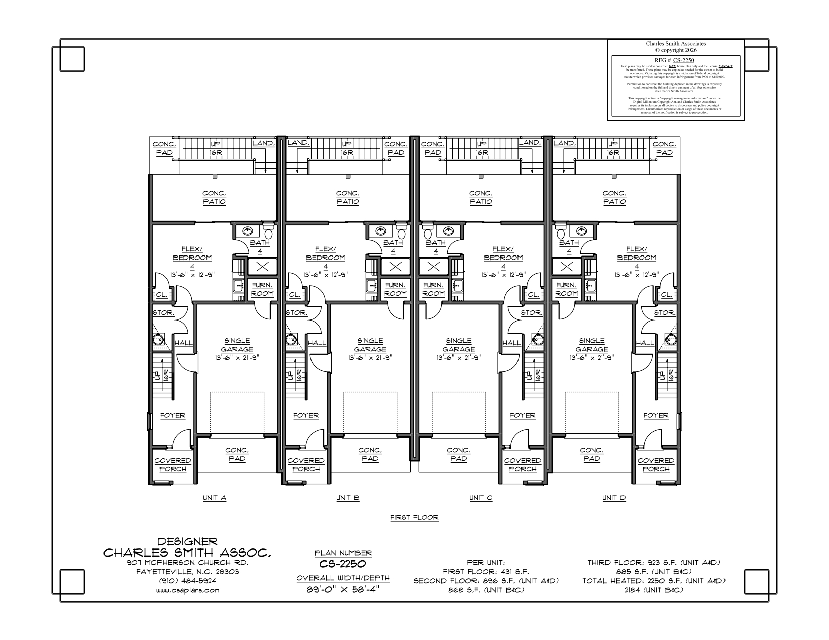
First Floor

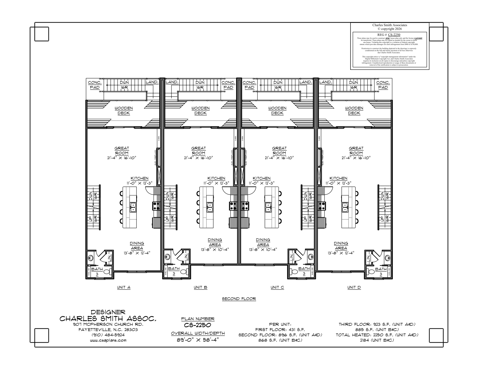
Second Floor

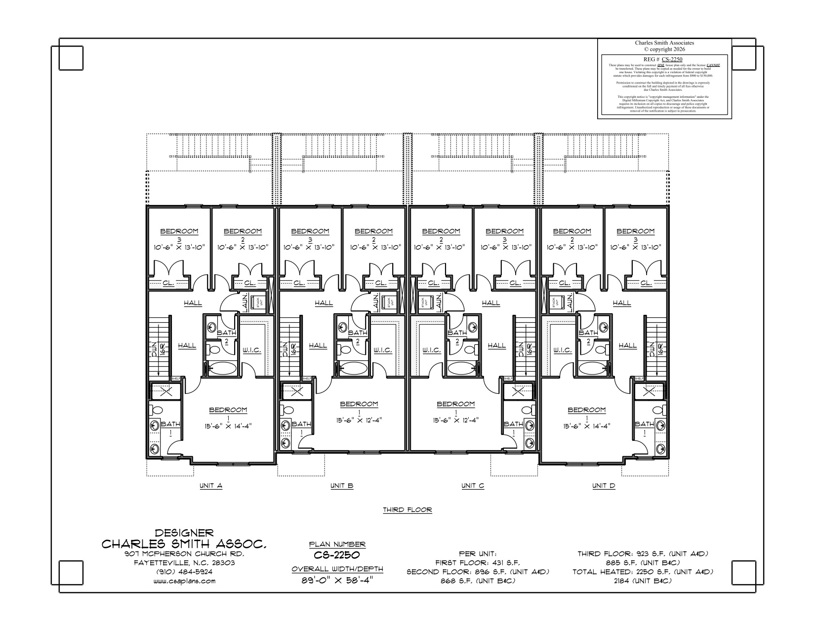
Third Floor

Information

Copyright (c) Charles Smith Associates